Westwood Road, Ilford, IG3

Guide Price: £900 - £1150 pcm Status: Let Agreed Date Available: 03/02/2019

TRANSPORT LINKS, GARDEN, AMENITIES !!! This ground floor recently decorated 1 bedroom flat with a spacious lounge is located in the heart of Seven Kings. The flat boasts a huge garden, local amenities along the High Road and excellent transport links for an easy commute into Canary Wharf, The City and Stratford International.

Key Features

  • 1 Good Size Bedroom
  • Separate Lounge / Dining Area
  • Unfurnished
  • Seven Kings Station
  • Goodmayes Station
  • Private Garden
  • Available Now
  • Shared Bills

Guide Price: £900 - £1150pcm

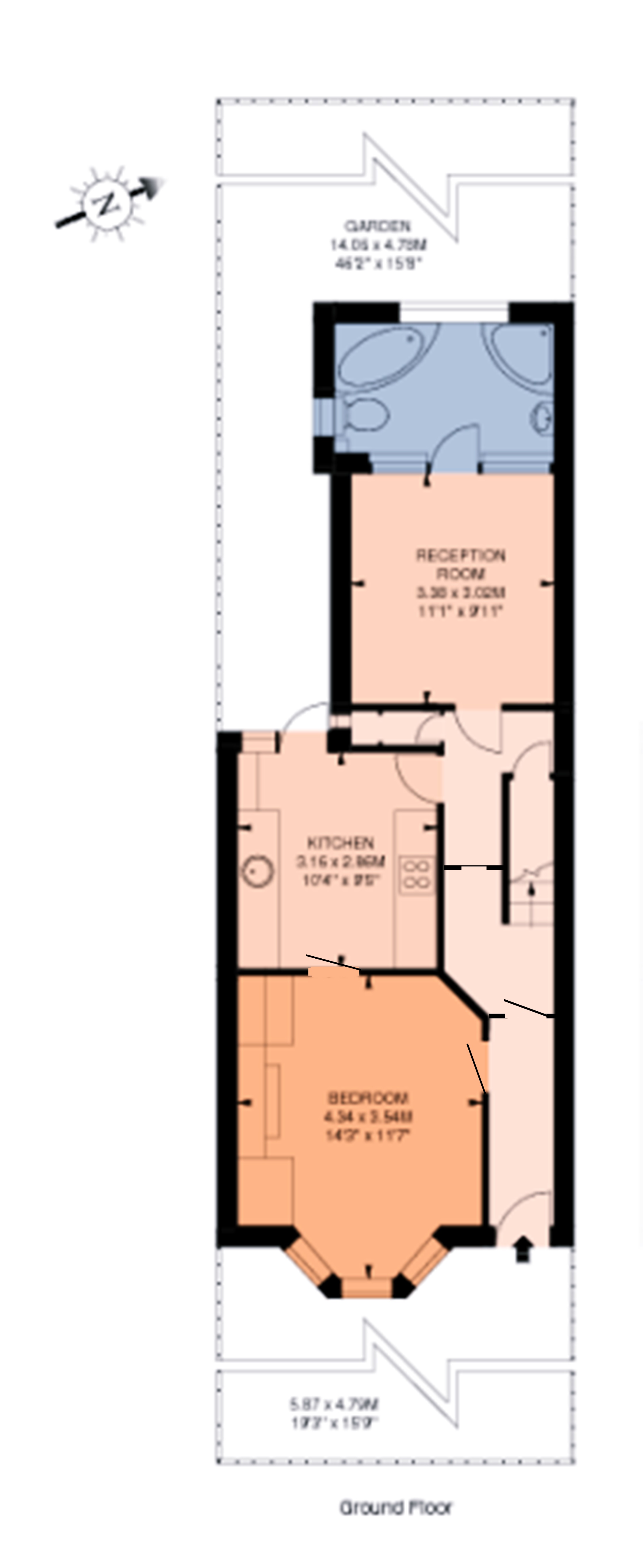
Spacious 1 bedroom ground floor flat within a mid terrace Victorian house conversion. The flat offers a separate lounge/dining area, 4 piece bathroom suite as well as sole use of SW facing garden, which backs directly onto Westwood Recreation Ground.

The property comprises 1 double bedroom with bay window with cast iron fireplace, fitted kitchen with SW facing rear garden.This spacious home also benefits from double glazing and gas central heating throughout.

Westwood road is conveniently located close to all the amenities off the High Road in Seven Kings, moments from Seven Kings station (Crossrail - Elizabeth Line) and offers excellent transport links for easy access to Canary Wharf, The City, Stratford International and Westfield Shopping Centre.

This property comes unfurnished and suitable for a couple or small family. Available Now. Call now to arrange a viewing.

Entrance/Hallway:
Communal Entrance, laminate flooring, under-stairs storage, radiator and various power sockets.

Kitchen: 10'4 x 9'5
Fitted kitchen with range of eye level wall and base units, vinyl flooring throughout, part tiled walls, washing machine, integrated hob. Light fittings, various power points. Dining table and chairs.

Lounge / Dining Area: 11'1 x 9'11
Laminate flooring,light fittings, power points and radiator.

Bedroom: 14'2 x 11'7
Laminate flooring, front aspect bay double glazed bay windows, various power points and double radiator, cast iron fire feature.

Bathroom:
Good size 4 piece suite, fully tiled flooring, part tiled walls. Wash hand basin with separate taps, corner bath/jacuzzi with separate taps, enclosed shower, low-level flush WC, radiator.

Garden: 46'2 x 15'9
Part paved, part lawn