Shelley House, Cornwall Avenue, London E2

Guide Price: £470,000 - £525,000 Status: SSTC

Charming three bedroom ground floor apartment in this 1930s mansion block with outdoor space. Close to local amenities with excellent transport links. Situated on Cornwall Avenue, moments from Bethnal Green Station. Ideal for first time buyers or investors alike. Call now for a viewing.

Key Features

  • Three bedrooms
  • 1930's Purpose Built Block
  • Spacious Living Room
  • South Facing Outdoor Space
  • Fitted Kitchen / Diner
  • Excellent Transport Links
  • Close to local amenities
  • Bethnal Green Underground Station (Central Line)

Guide Price: £470,000 - £525,000

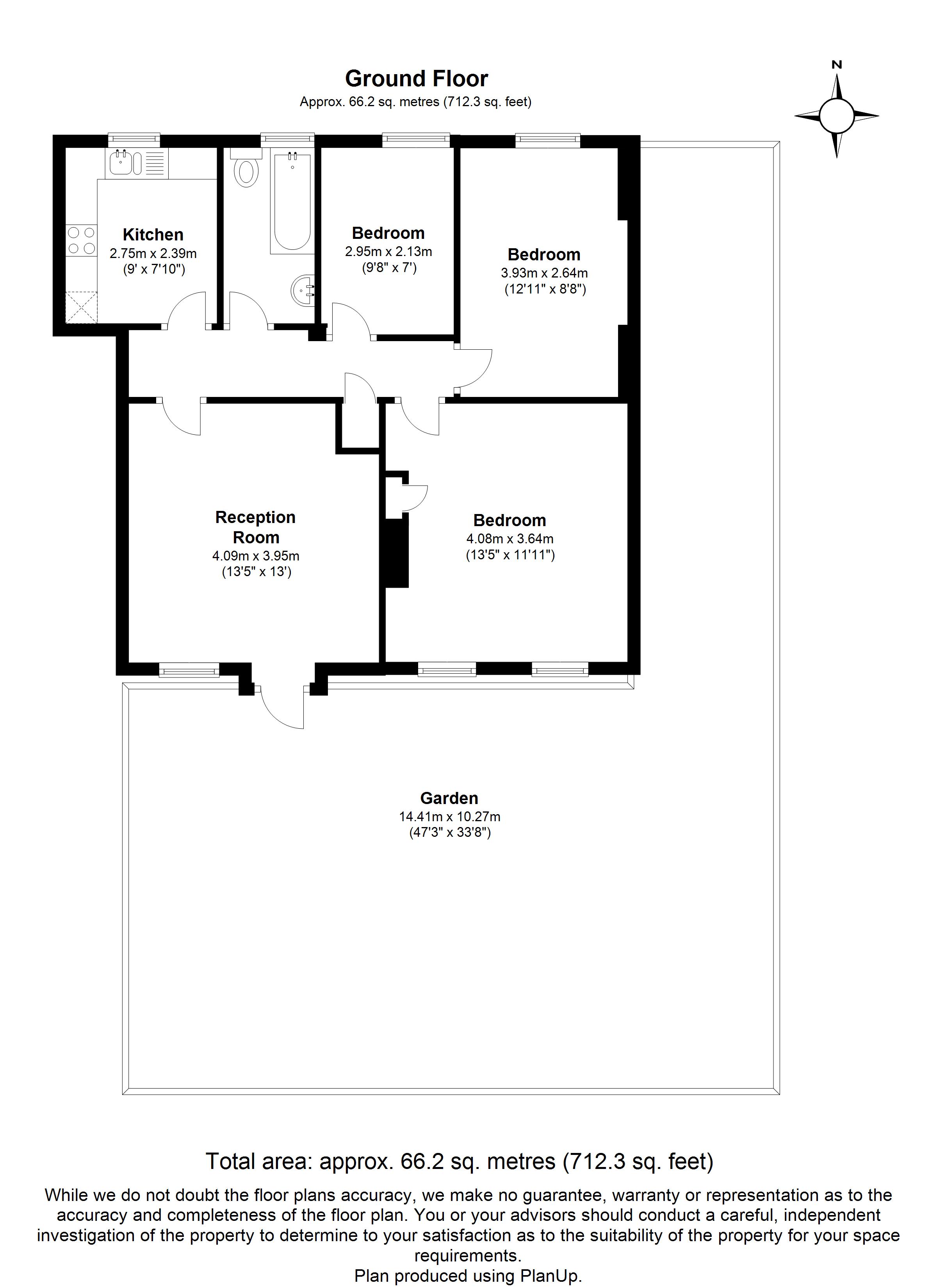
Located in one of London's sought after postcode is this spacious three bedroom apartment on the ground floor of this charming 1930's purpose built mansion block. Located within moments away from Bethnal Green (Central Line) Underground tube station. This bright and airy property with neutral decor throughout comprises a spacious lounge leading out to a huge south facing outdoor space with its own side entrance, park views, a fitted kitchen large enough to dine in, a three piece bathroom, double glazed windows and wood laminate flooring throughout, with high ceilings and south facing aspects the rooms get filled in with an abundance of light.

Bethnal Green Road and Roman Road markets are nearby, Columbia Road is moments away which is home not only to the famous flower market but also a plethora of fine bars and restaurants including Brawn, Campania and the Royal Oak whilst the trendy Brick Lane and Old Spitalfields market are a short walk away. It has good access to local amenities with excellent transport links. Ideal for first time buyers or an investor alike. Don't miss out on this opportunity.

Entrance/Hallway
Security door via entry system to ground floor entrance. Wood laminated floor, access to rooms, kitchens, bathrooms.

Kitchen 9' x 7'10
Gas cooker with extractor fan. Various eye and low level units. Washing machine . Laminate floor with fully tiled walls. Chrome mixer tap sink, rear aspect double glazed windows various power sockets. Large enough to dine in.

Bathroom 9' x 4'6
Three piece bath suite with electric shower, hot/cold mixer tap, wash basin with mixer tap, fully tiled walls and floors, low level flush, extractor fan, single radiator with towel rail, mirror storage cupboard, rear aspect double glazed windows.

Reception 13'5 x 13'
Front aspect, spacious. Wood laminate flooring, large double radiator, various power sockets.

Bedroom One 13'5 x 11'11
Double bedroom. Wood laminate flooring, front aspect, radiator, various power sockets.

Bedroom Two 12' 11 x 8'8
Double bedroom. Wood laminate flooring, rear aspect, radiator, various power sockets.

Bedroom Three 9'8 x 7
Double bedroom. Wood laminate flooring, rear aspect, radiator, various power sockets.

Garden 47'3 x 33'8
Fully paved with side entrance. South facing.