Brierly Gardens, Bethnal Green, London E2

Guide Price: £1,100 - £1,300 Status: Let Agreed

Boasting a great location to local amenities, this lovely first floor two bed apartment (NO LOUNGE) offers bright interiors throughout, combined with well proportioned rooms to match. Ideal property for the perfect professional tenants. Call today to arrange a viewing.

Key Features

  • Two Double Bedroom
  • (NO LOUNGE)
  • Separate Fitted Kitchen
  • Three Piece Bathroom
  • First Floor
  • Furnished / Unfurnished
  • Trendy Location
  • Superb Transport Links
  • Ideal For Professional Couple & Sharers Alike
  • Available 24th of October

Guide Price: £1,100 - £1,300 PCM

Situated within a low rise purpose built block, is this lovely, spacious two bed apartment located on a quiet residential turning only moments away Bethnal Green Underground Tube Station (Central Line). Offered in good decorative order throughout, this spacious apartment boast two good sized bedroom, (NO LOUNGE), a separate modern fitted kitchen large enough to dine in and a modern 3 piece bathroom suite.

Brierly Gardens is a short walking distance to some of East London's trendy and vibrant social hotspots. A wonderful opportunity for a discerning professional couple looking for a property close to the recreational open spaces of Victoria Park, quick access to the City as well as being close to a host of local amenities, fine eateries, fashionable boutiques, gastro bars and art galleries. Available furnished or unfurnished on a short let, this property is not to be missed. Call today to arrange an appointment.

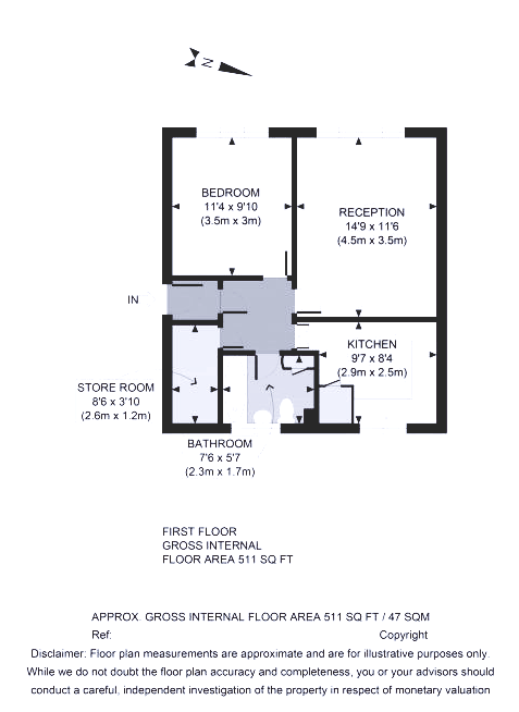
Hallway

Carpeted flooring throughout, light fitting, various power points

Bedroom One 14'9 x 11'6

Carpeted flooring throughout, various power points, light fitting, double glazed , radiator.

Bedroom Two 11'4 x 9'10

Carpeted flooring throughout,various power points, light fitting, double glazed windows, radiator.

Kitchen 9'7 x 8'4

Tiled flooring throughout, range of base and wall units, laminate wood work surface, sink with separate taps, standing gas cooker / oven, space for washing machine, various power points, light fitting, double glazed glazed window, built in storage cupboard.

Bathroom 7'6 x 5'7

Tiled flooring throughout, tiled walls, bath unit with separate taps, low level flush, wash hand basin with separate tap, under sink storage, double glazed frosted windows.

Store room 8'6 x 3'10